Retail
PERIODIC RETAIL CHARM
167 Elgin Street, Carlton VIC 3053
Price guide: $35,000 per annum + GST + outgoings
- Polished wooden flooring
- Generous frontage
- Prime retail space
Aston are excited to offer this retail space located in the vibrant heart of Carlton for Lease.
The property offers generous frontage on a high-traffic street with superb visibility, with strong neighbouring tenants and the busy Lygon and Rathdowne Streets are a mere stone's throw away. This is a prime location for a plethora of business ventures.
The features:
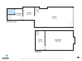
• Total area of 88m²* (including basement)
• Retail area of 39m²* with abundant natural light
• Polished wooden flooring
• Additional basement area** of 36m²*
• Toilet and kitchenette
• Generous frontage offering exposure to strong foot traffic
• Air-conditioning unit
This is an ideal opportunity for businesses seeking a versatile and well-located retail store with excellent exposure. Don't miss this rare opportunity to secure a prime retail space in a sought-after area.
Contact us to arrange an inspection or for more information.
*approximate
**Not suitable for commercial purposes
Oliver Redfern
Agency Executive
Sebastian Origlia
Agency Executive
167 Elgin Street, Carlton VIC 3053