Price Guide:
Aston are pleased to offer 17/131 Hyde Street, Footscray by Private Sale.
Positioned within one of the inner west’s most tightly held industrial precincts, 17/131 Hyde Street, Footscray presents an outstanding opportunity for owner-occupiers and investors seeking a functional and well-connected commercial space.
The features:
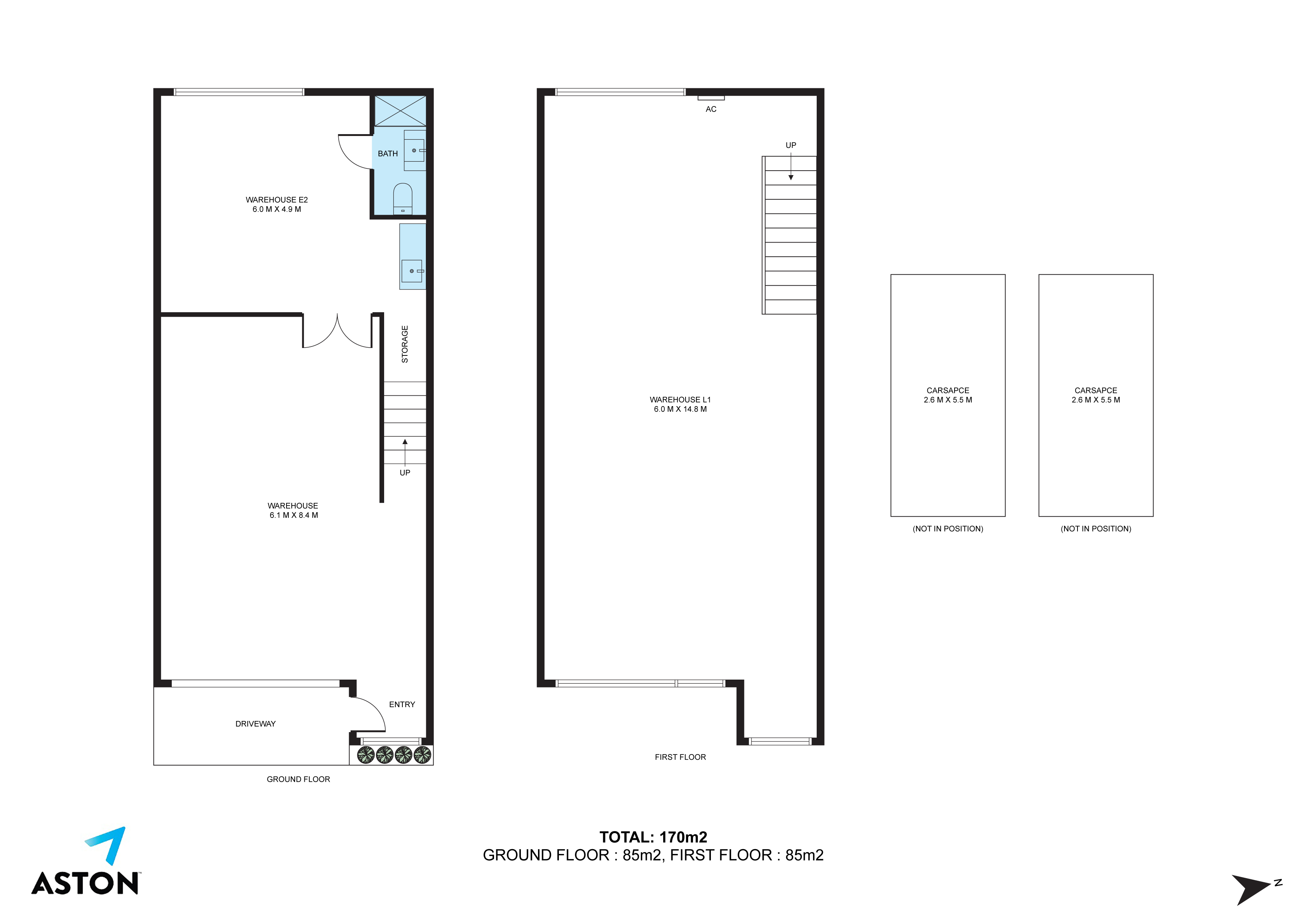
• Total building area of 170m²*
• First floor office of 85m²*
• Two (2) car spaces
• Offered with vacant possession
• Kitchenette facilities and amenities
• Free all day on street parking
• Unrivalled convenience - 5km* to CBD and Port
• Easy walk to Yarraville cafes and Train Station precinct
• Industrial 3 Zoning
Strategically located within the established industrial pocket of Footscray, the property benefits from excellent connectivity to key arterial routes including Hyde Street and nearby Dynon Road, providing direct access to the Melbourne CBD, the Port of Melbourne and Melbourne’s broader freeway network.
With its combination of functional improvements, modern office accommodation and a highly accessible inner-west location, this property represents a compelling opportunity to secure a quality industrial asset in a sought-after commercial precinct.
Contact the agents below to book your private inspection.
*approximate.


Scroll through below for some of our other properties that we think you might be interested in.