Price Guide:
Aston are pleased to present 16 Duffy Street, Burwood by Expressions of Interest closing Thursday 16 April at 3pm.
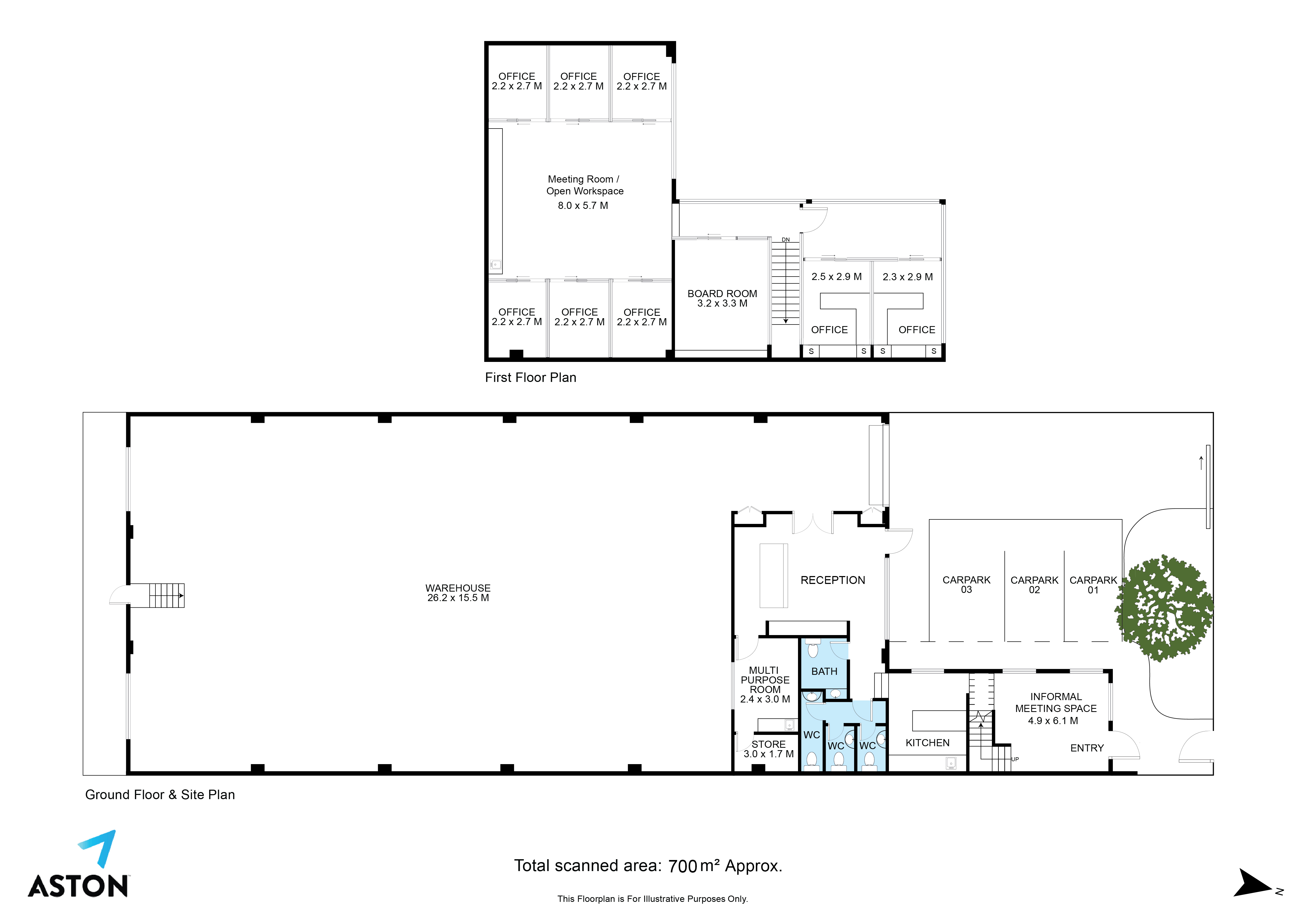
A rare opportunity to secure a truly exceptional office/warehouse in one of Burwood’s most sought after commercial pockets. Recently transformed by a stunning, high end renovation, this standout property sets a new benchmark for presentation, security and functionality in the area.
Featuring an impressive two (2) storey office with a premium full fit out, alongside a substantial warehouse with roller door access, the building has been meticulously designed to satisfy the most discerning owner occupier. With outstanding security throughout and offered with vacant possession, this is a turnkey acquisition for businesses seeking prestige, performance and immediate occupation.
The features:
• Stunning two (2) level office showroom
• Clear span warehouse of 445m²*
• Container height roller door
• Behind secure remote controlled gates
• Burwood's premier industrial precinct
• Exceptional security for total peace of mind
• A headquarters worthy of your business
Burwood is a highly regarded inner eastern Melbourne suburb, located approximately 14 kilometres* east of the Melbourne CBD, offering an ideal balance of accessibility, amenity and long term growth fundamentals.
Contact the exclusive agents at Aston for further information or to arrange a private inspection.
*approximate


Scroll through below for some of our other properties that we think you might be interested in.