Price Guide:
Aston are pleased to present 345 Centre Road, Bentleigh for Lease.
Anchored in the heart of Bentleigh’s most tightly held retail strip, 345 Centre Road offers an outstanding leasing opportunity with exceptional exposure, strong foot traffic and versatile use potential.
With a wide shopfront, existing grocery fit-out and rear access, this is a rare chance to secure space in one of Melbourne’s busiest neighbourhood shopping precincts.
The features:
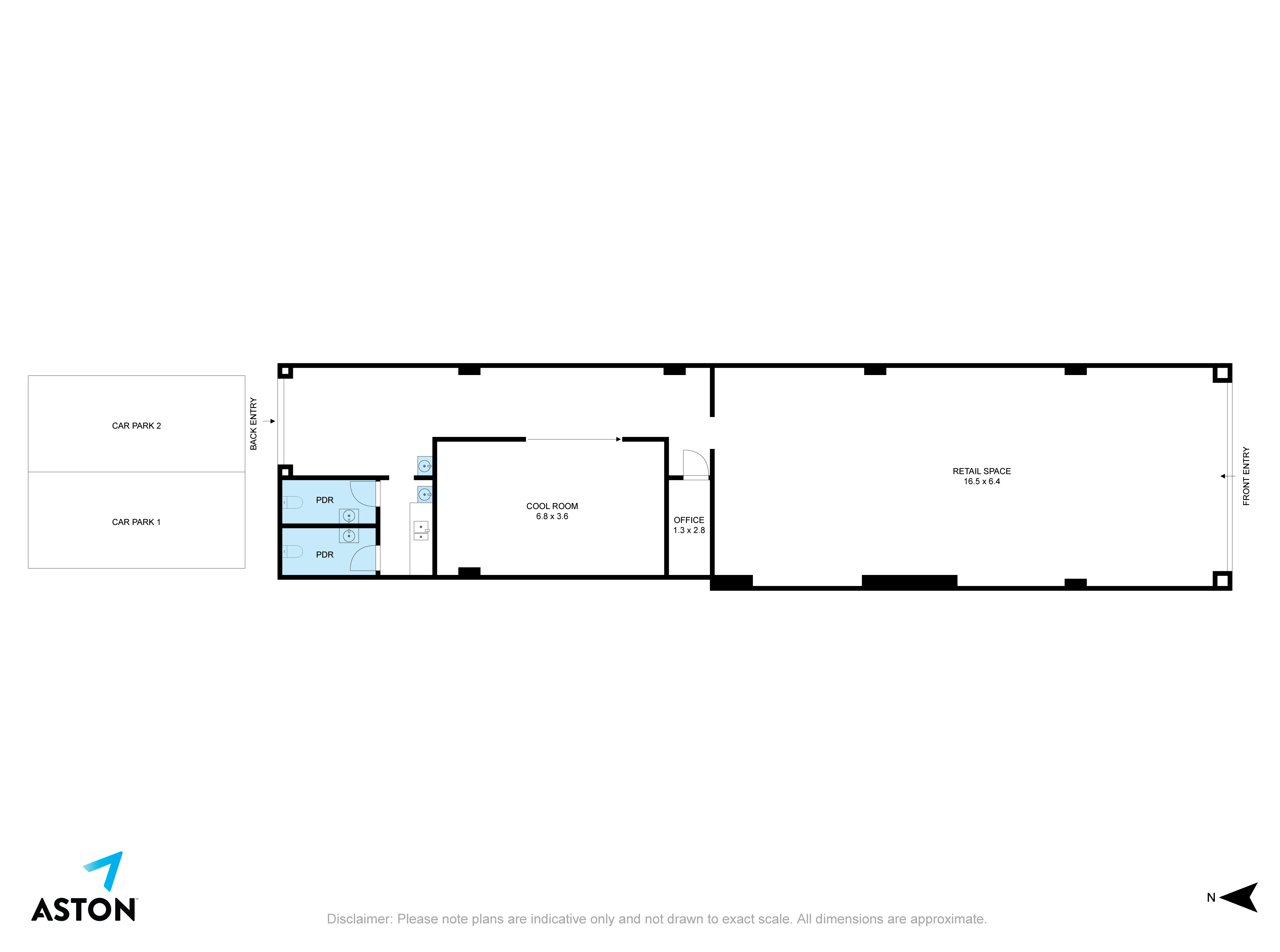
• Building area of 170m²*
• Expansive frontage providing strong visual impact
• Positioned within the highest-traffic stretch of Centre Road
• Existing grocery-style fit-out, including walk-in cool room
• Secure roller door access points to both front and rear
• Convenient rear access via Maple Street
• Dedicated office/security room
• Separate male and female amenities
• Two (2) on-site car spaces at the rear
• Prominent signage potential across a highly visible façade
• Flexible layout suitable for a range of uses (STCA)
The location:
Situated less than 100 metres* from Bentleigh Train Station, the property benefits from constant pedestrian and vehicle traffic. Surrounded by major national retailers including Coles, Woolworths, Aldi and Chemist Warehouse, as well as thriving cafés, grocers, restaurants and allied health operators, this location offers exceptional visibility, convenience and trading potential in one of Melbourne’s strongest suburban retail precincts.
For further information or to arrange an inspection, please contact the exclusive agents.
*approximate


Scroll through below for some of our other properties that we think you might be interested in.