Price Guide:
Aston are pleased to present 5 Kiel Close, Kilsyth for Lease.
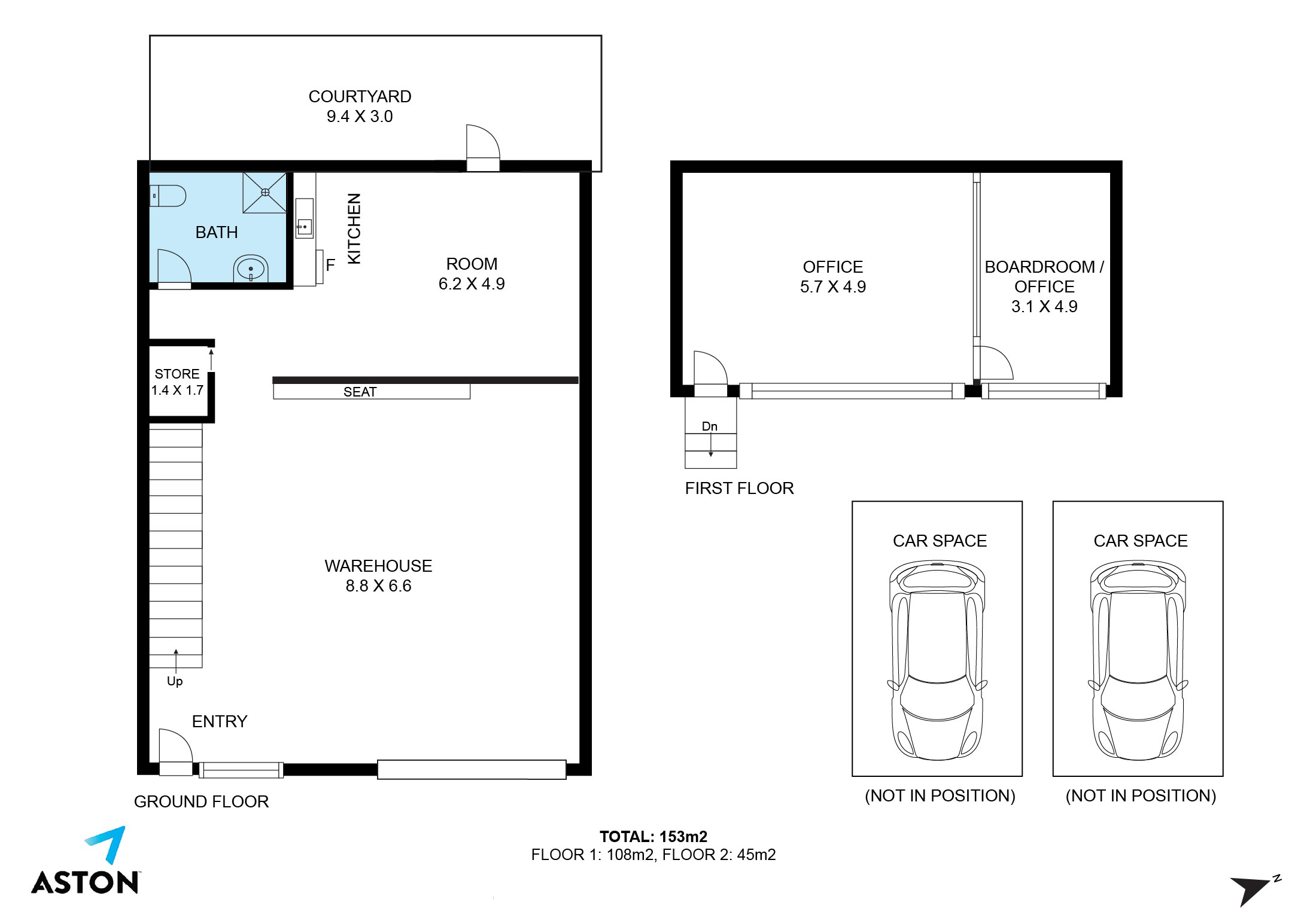
Position your business in this modern, well-presented industrial development, offering a high quality workspace with excellent functionality and presentation.
The features:
• Modern industrial development
• High quality internal fitout
• First floor offices and boardroom
• Ground floor bathroom and kitchenette amenities
• Clear-span warehouse area with significant height clearance
• High clearance roller door
• Excellent access to major arterial roads
• Two (2) on-title car spaces
• Flexible Industrial 1 Zoning
• Suitable for a wide range of business uses (STCA)
Located within a tightly held industrial precinct of Kilsyth, the property benefits from excellent connectivity to major arterial roads including Canterbury Road and EastLink, ensuring smooth access to Melbourne’s eastern suburbs and beyond.
Contact the agents below to arrange an inspection.
*approximate


Scroll through below for some of our other properties that we think you might be interested in.