Price information
Aston are pleased to present Unit 18/7 Dalton Road, Thomastown for sale under instruction from the Mortgagee in Possession to be Auctioned on Wednesday 26 February at 12pm on-site.
Discover the perfect blend of office and warehouse space in the heart of Thomastown's thriving business park. This versatile unit offers an ideal solution for businesses seeking a strategic location with excellent amenities.
The features:
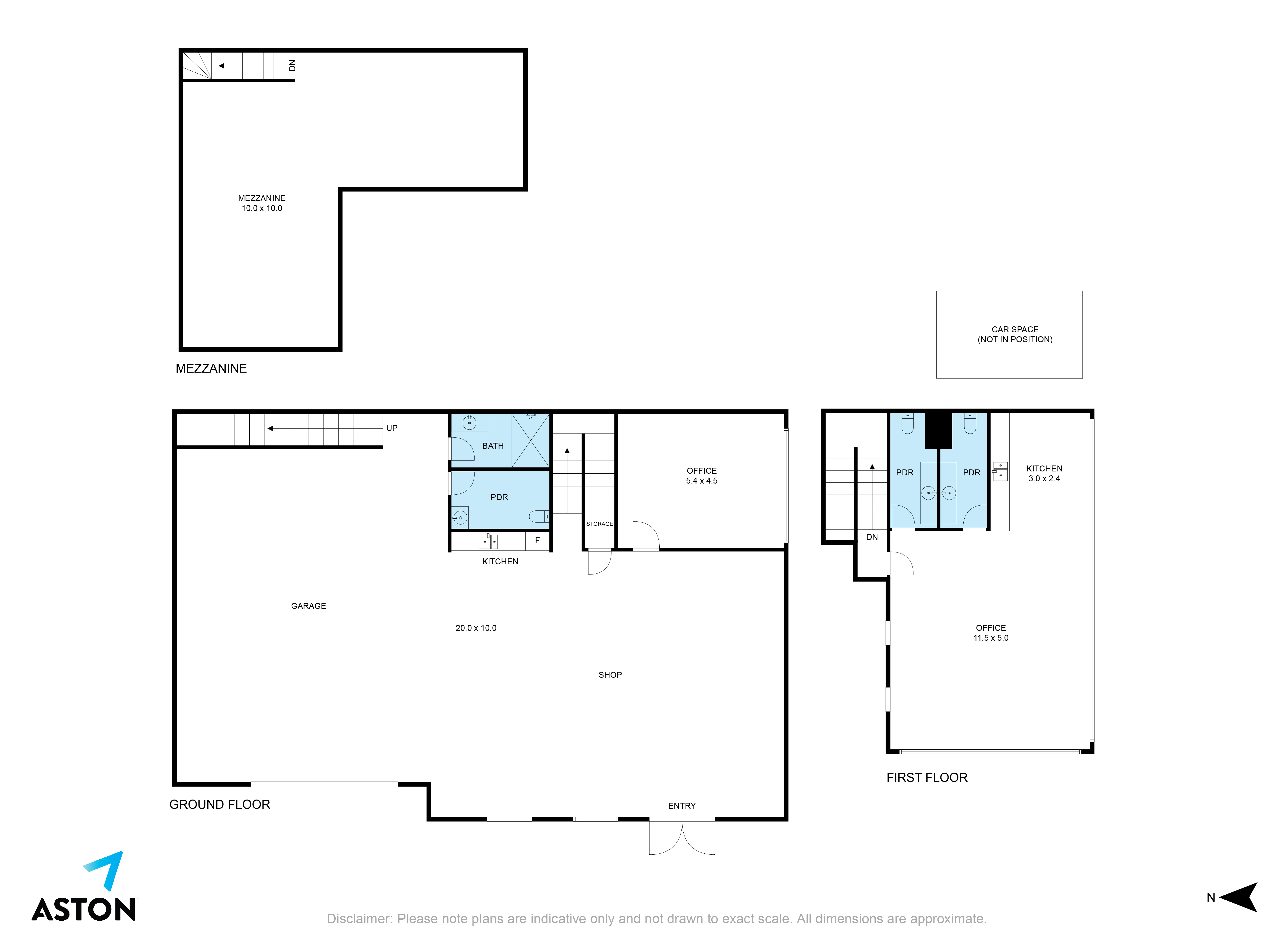
• Building area of 257m²*
• Two-level office area of 57m²*
• Warehouse area of 200m²* with nine (9) metre clearance
• Kitchenette and bathroom facilities
• Location: Situated in a well-established business park in Thomastown, providing easy access to major highways and public transport
• Space: Spacious office area combined with a functional warehouse, perfect for a variety of business needs
• Amenities: Modern facilities including high-speed Internet, ample parking
• Accessibility: Conveniently located near local shops, cafes, and other essential services
Whether you're looking to expand your operations or establish a new base, this office warehouse unit offers the flexibility and convenience your business needs. Don't miss out on this prime opportunity!
Contact us today to arrange a viewing and secure your new business location in Thomastown.
*approximate
Disclaimer: All information provided has been obtained from sources we believe to be accurate, however, we cannot guarantee the information is accurate and we accept no liability for any errors or omissions (including but not limited to a property's land size, floor plans and size, building age and condition). Interested parties should make their own enquiries and obtain their own legal and financial advice.


Scroll through below for some of our other properties that we think you might be interested in.